NA PREDAJ priestranný 5-izbový rodinný dom v Stupave
   Ponúkame na predaj pekný, priestorovo veľkoryso riešený 5-izbový, nízkoenergetický rodinný dom s peknou záhradou v tichej lokalite mesta Stupava, iba 9 km od Bratislavy (BORY MALL).
 
				Ponúkame na predaj pekný, priestorovo veľkoryso riešený 5-izbový, nízkoenergetický rodinný dom s peknou záhradou v tichej lokalite mesta Stupava, iba 9 km od Bratislavy (BORY MALL).
 
Jedná sa o ekologický murovaný rodinný dom v radovej zástavbe postavený v roku 1997, realizácia ktorého vychádzala z austrálskeho konceptu výstavby, pri ktorom bol použitý ako materiál na výstavbu cementopieskový obal vyplnený dusanou stabilizovanou zeminou s rôznymi biologickými prísadami po obvode celého domu v hrúbke 50 cm. Deliace priečky sú z pálenej tehly. Výhodou tohto stavebného materiálu je, že steny domu akumulujú teplo, vytvárajú stálu vlhkosť, pôsobia podporujúco pri liečbe reumatikov, alergikov a astmatikov. Rodinný dom je dvojpodlažný, všetky izby v dome sú priestranné, majú vysoké stropy a sú presvetlené denným svetlom. 
 
Veľkým benefitom danej nehnuteľnosti je krásna slnečná záhrada s parkovou úpravou orientovaná na južnú svetovú stranu, ktorá majiteľom poskytuje ticho, pokoj a relax.
 
Rodinný dom prešiel v roku 2023 kompletnou rekonštrukciou.
 
Špecifikácia nehnuteľnosti: 
-	rekonštrukcia strechy v roku 2023, ktorá je opatrená kanadským šindlom, štrešnou fóliou fatrafol a fúkanou izoláciou
-	kuchyňa so špajzou, v ktorej je nová kuchynská linka vyhotovená na mieru s novými vstavanými spotrebičmi značky Elektrolux: plynová varná doska, elektrická rúra, umývačka riadu, mikrovlnka, chladnička s mrazničkou, drez s pákovou batériou, digestor
-	vykurovanie je zabezpečené novým plynovým kondenzačným kotlom (2024) a radiátormi s centrálnym ovládaním termostatom
-	plastové okná s izolačným dvojsklom sú opatrené vonkajšími roletami a sieťkami proti hmyzu
-	vchodové dvere do domu sú bezpečnostné
-	podlahy v celom dome tvoria parkety z prírodného masívu, vo vstupnej predsieni, kuchyni, na toaletách a v kúpeľni je položená keramická dlažba  
-	interiérové dvere, zárubne a schodisko sú z prírodného masívu
-	kúpeľňa s novou sanitou, obkladmi a dlažbou, so sprchovacím kútom a dvojumývadlom
-	dve samostatné nové toalety, jedna na prízemí a druhá na poschodí
-	dve vstavané skrine v izbách a veľká šatníková skriňa v spálni poskytujú dostatok úložného priestoru
-	na poschodí je situovaný výlez na povalu, ktorá je celá pochôdzna a poskytuje veľký úložný a odkladací priestor
-	ďalší úložný priestor sa nachádza pod schodiskom
-	celý pozemok je oplotený okrasným betónovým plotom
-	okrasná záhrada, v ktorej je situovaná narážaná studňa s dobrou výdatnosťou vody, disponuje závlahovým systémom HUNTER a v zadnej časti sa nachádza záhradný domček o rozlohe 8,4 m2
 
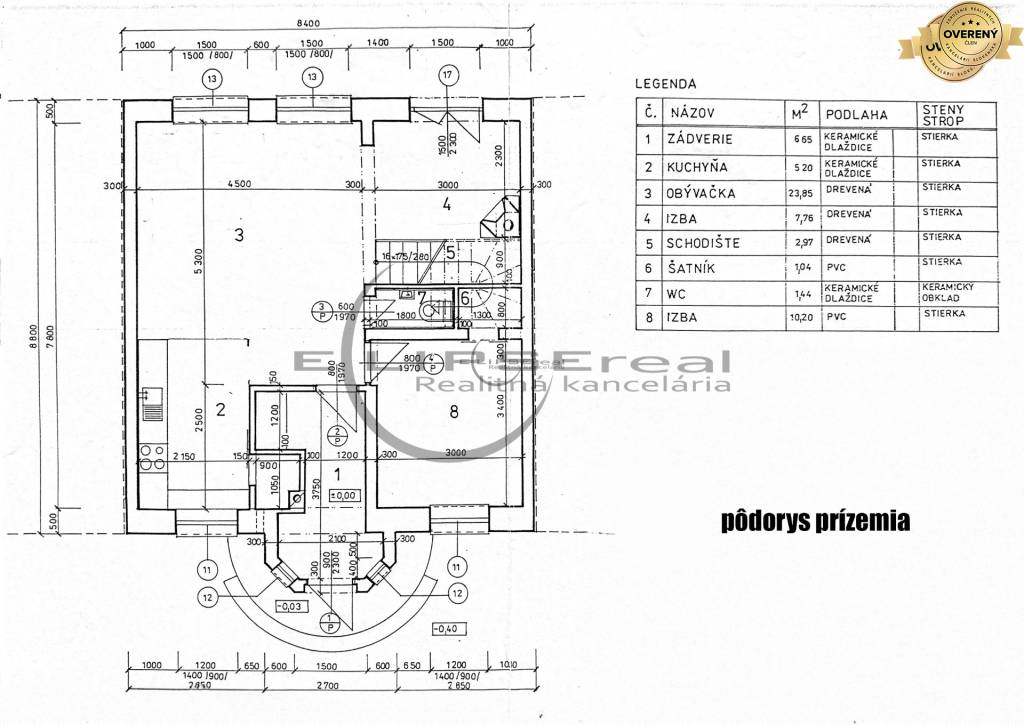
Výmery: 
-	dom je postavený na pozemku o výmere 349 m2
-	zastavaná plocha domu je 78 m2
-	podlahová plocha domu je 114,74 m2
-	terasa má výmeru cca 18 m2
 
Orientácia domu je juh - sever   
 
Inžinierske siete: voda, plyn, kanalizácia, elektrina, internet optika, vlastná studňa o hĺbke 7 m  
Náklady na bývanie pri dvoch osobách sú cca 100,- eur.
 
Rodinný dom sa nachádza v pokojnej, tichej lokalite s desaťminútovou pešou dostupnosťou do centra mesta Stupava s kompletnou občianskou vybavenosťou. V blízkosti sa nachádza predajňa potravín Kraj a autobusová zastávka s pravidelným spojom do okresného mesta Malacky a do Bratislavy. Obyvatelia Stupavy určite ocenia možnosť prechádzok v kaštielskom parku, množstvo cyklotrás, náučných chodníkov a cyklomost do susedného Rakúska cez rieku Morava. Neobmedzené sú tu aj možnosti rybolovu, či už na rieke Morava alebo v blízkosti viacerých jazier. Nájazd na diaľnicu D2 je vo vzdialenosti 3 km.
 
Na túto nehnuteľnosť v súčasnosti nie  je vypracovaný energetický certifikát.
 
Informácie o nehnuteľnosti majú informatívny charakter a môžu podliehať zmenám.
 
Cena priestranného 5-izbového rodinného domu po kompletnej rekonštrukcii s peknou okrasnou záhradou v tichej obytnej zóne, iba 9 km od Bratislavy, je 429.000,- eur vrátane provízie realitnej kancelárie. 
 
V prípade Vášho záujmu ma kontaktujte prosím mailom: renataduffekova@gmail.com alebo telefonicky: 0914 777 812.
 
S vybavením hypotekárneho úveru Vám rada pomôže naša finančná poradkyňa Dorota Duffeková, mobil: 0904 400 316, mail: dorota.duffekova@gmail.com
 
© Text a fotografie podliehajú autorským právam a sú majetkom realitnej kancelárie Eclipsereal s. r. o.
 
Všetky ostatné ponuky realitnej kancelárie si môžete pozrieť na www.eclipsereal.sk
 
Realitná kancelária Eclipsereal s. r. o. je členom Združenia realitných kancelárií Slovenska – www.zrks.sk
	
429.000,- € vrátane provízie
- Štát: Slovensko
- Okres: Malacky
- Mesto: Stupava
- Druh: Rodinný dom
- Typ: predaj
| Cena | vrátane provízie | 
| Poschodie | prízemie | 
| Počet poschodí | 1 | 
| Počet izieb | 5 | 
| Zastavaná plocha | 78 m² | 
| Rozloha pozemku | 349 m² | 
| Úžitková plocha | 132.74 m² | 
| Stav | úplne prerobený | 
| Status | aktívne | 
| Odvoz odpadu | áno - separovaný | 
| Voda | studňa a vodovod | 
| El. napätie | 230/400V | 
| Plyn | áno | 
| Kanalizácia | áno | 
| Internet | optika | 
| Kúpeľňa | sprchovací kút | 
| Vykurovanie | vlastné - plyn | 
| Terasa | 18 m² | 
| Parkovanie | vlastné vyhradené | 
| Inžinierske siete | áno | 
| Zariadenie | čiastočne | 
| Strecha | po rekonštrukcii | 
| Energetický certifikát | nie | 
| Bezbariérový prístup | áno | 
| Okná | plastové | 
| Terén | rovina | 
| Prístupová cesta | asfaltová cesta | 



















 
 


