NA PREDAJ slnečný 2-izbový byt s prekrytým balkónom v centre Malaciek
Ponúkame na predaj 2-izbový byt s prekrytým balkónom a pekným výhľadom v centre Malaciek, na Partizánskej ulici.
Byt je situovaný na 3. poschodí trojposchodového murovaného bytového domu bez výťahu, ktorý bol postavený v roku 2004. Bytový dom je dobre udržiavaný, má k dispozícii veľmi pekný vlastný dvor so záhradou a vonkajším sedením. Pozemok je celý oplotený a uzamykateľný. Vo dvore je situované detské ihrisko, vonkajší krb s grilom a altán na príjemné posedenie v záhrade, ktorý slúži vlastníkom bytov bytového domu.
Orientácia bytu je na južnú svetovú stranu.
Celková výmera bytu je 44,47 m2
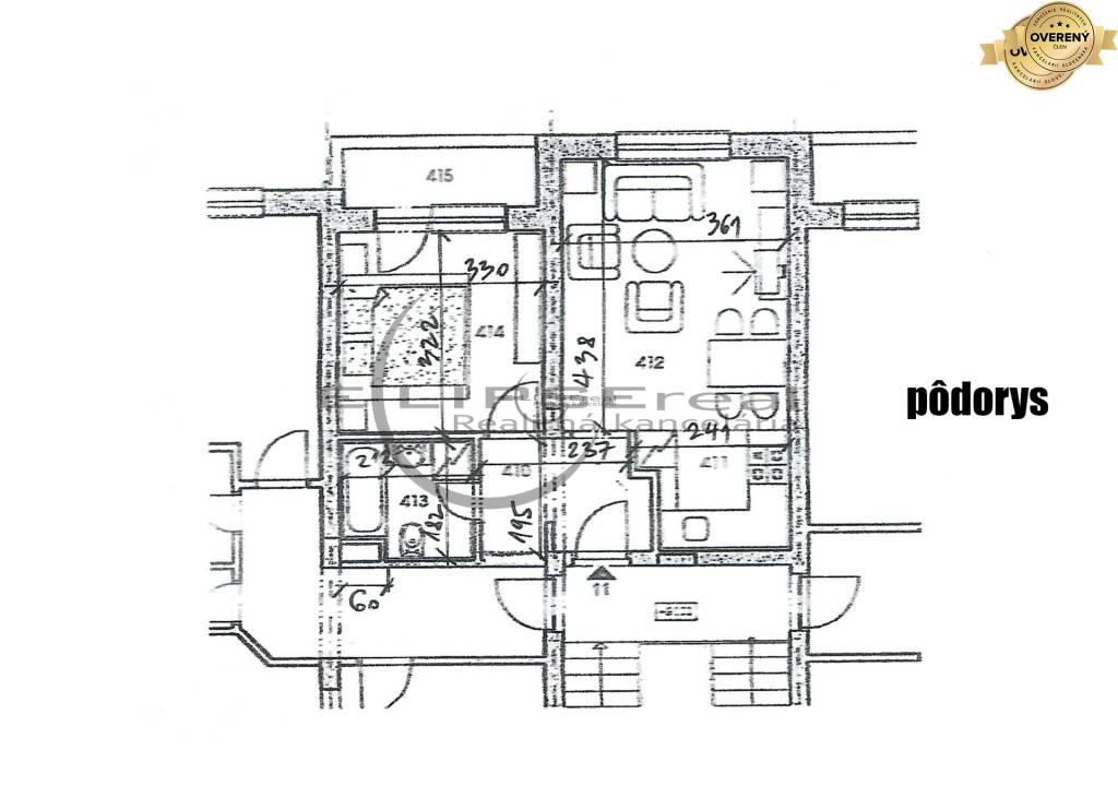
Dispozícia: byt pozostáva zo vstupnej predsiene prepojenej chodbou, ktorá byt rozdeľuje na nočnú a dennú časť. Denná časť bytu je tvorená voľne prepojenou kuchyňou s obývačkou. Z chodby sa ďalej vchádza do spálne s balkónom a do kúpeľne s vaňou, umývadlom a toaletou. Vo vstupnej chodbe je situovaná vstavaná skriňa poskytujúca odkladací a úložný priestor.
Okná v byte sú plastové s izolačným dvojsklom. V byte je zavedený telefónny domový vrátnik. Vchodové dvere do bytu a taktiež aj vchodové dvere do bytového domu sú bezpečnostné.
Kuchyňa je s jedálenskou časťou a s kuchynskou linkou, v ktorej sú spotrebiče: elektrický sporák, elektrická rúra, digestor, drez s batériou, chladnička s mrazničkou.
Podlahy v byte tvorí linoleum v kombinácii s keramickou dlažbou v kuchyni, kúpeľni a na balkóne.
K bytu prináleží vlastná murovaná pivnica o výmere 2,5 m2, situovaná v suteréne bytového domu.
Bytový dom sa nachádza v pekne udržiavanej, zabývanej lokalite centra mesta Malacky na Partizánskej ulici. V pešej dostupnosti je Zámocký park a kompletná občianska vybavenosť. Byt poskytuje budúcemu majiteľovi moderné a praktické bývanie v centre mesta Malacky. Tesne pred bytovým domom vedie udržiavaná cyklotrasa. Možnosť parkovania je na pekne upravenom verejnom parkovisku pred bytovým domom a aj v bočnej priľahlej časti, ktorá prislúcha majiteľom bytov bytového domu.
Všetky technické údaje podliehajú zmenám a sú založené na informáciách poskytnutých majiteľom.
Cena 2-izbového bytu s prekrytým balkónom a pekným výhľadom v bytovom dome s vlastnou záhradou v centre mesta Malacky je 139.000,- eur vrátane provízie realitnej kancelárie. V prípade záujmu ma kontaktujte prosím telefonicky: 0914 777 812 alebo mailom: renataduffekova@gmail.com
S vybavením hypotekárneho úveru Vám rada pomôže naša finančná poradkyňa Dorota Duffeková, mobil: 0904 400 316, mail: dorota.duffekova@gmail.com
© Text a fotografie podliehajú autorským právam a sú majetkom realitnej kancelárie Eclipsereal s.r.o.
Všetky ostatné ponuky realitnej kancelárie si môžete pozrieť na www.eclipsereal.sk
Realitná kancelária Eclipsereal s.r.o. je členom Združenia realitných kancelárií Slovenska – www.zrks.sk
V prípade našej spolupráce:
- neplatíte poplatky spojené s predajom nehnuteľnosti,
- hradíme: právny servis – spracovanie rezervačnej zmluvy, kúpno-predajnej zmluvy, návrhu na vklad do katastra, poplatky za podpisy u notára na kúpnych zmluvách a základný správny poplatok za návrh na vklad do katastra nehnuteľností,
- bezplatne ponúkame služby hypotekárneho špecialistu, ktorý Vám vyjedná výhodnejšie podmienky platenia Vášho hypotekárneho úveru,
- zabezpečíme znalca,
- zabezpečíme bezplatný prepis dodávateľov energií z pôvodného odberateľa na nového odberateľa,
- v prípade potreby predaja Vašej nehnuteľnosti Vám radi pomôžeme,
- zabezpečíme služby interiérového a exteriérového architekta,
- vyriešime za Vás kompletný servis pohodlne a bezpečne so zárukou diskrétnosti.
139.000,- € vrátane provízie
- Štát: Slovensko
- Okres: Malacky
- Mesto: Malacky
- Ulica: Partizánska
- Druh: 2-izbový byt
- Typ: predaj
| Cena | vrátane provízie |
| Poschodie | 3/posledné poschodie |
| Počet poschodí | 3 |
| Počet izieb | 2 |
| Celková rozloha | 44.47 m² |
| Status | aktívne |
| Odvoz odpadu | áno - separovaný |
| Plyn | nie |
| Kúpeľňa | vaňa |
| Vykurovanie | spoločné |
| Balkón | 2.95 m² |
| Pivnica | 2.50 m² |
| Výťah | nie |
| Parkovanie | verejné |
| Postavené z | tehla |
| Zariadenie | čiastočne |
| Energetický certifikát | nie |
| Bezbariérový prístup | nie |
| Okná | plastové |
| Orientácia | južná |






















